Nadur, 3 Bedroom Apartment
REF: HAUS-3277
€220,000
COMPLETED ON
6/29/2027




Details
Residential -
Sale
Location:
Nadur
Property Type:
Apartment
Property Status:
Shell
New on the market
Description
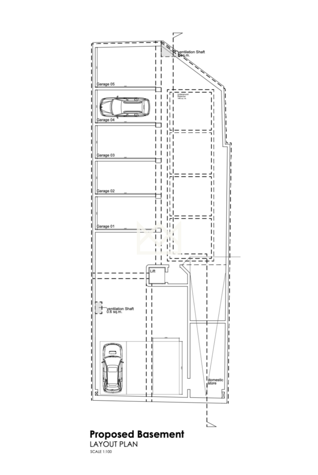
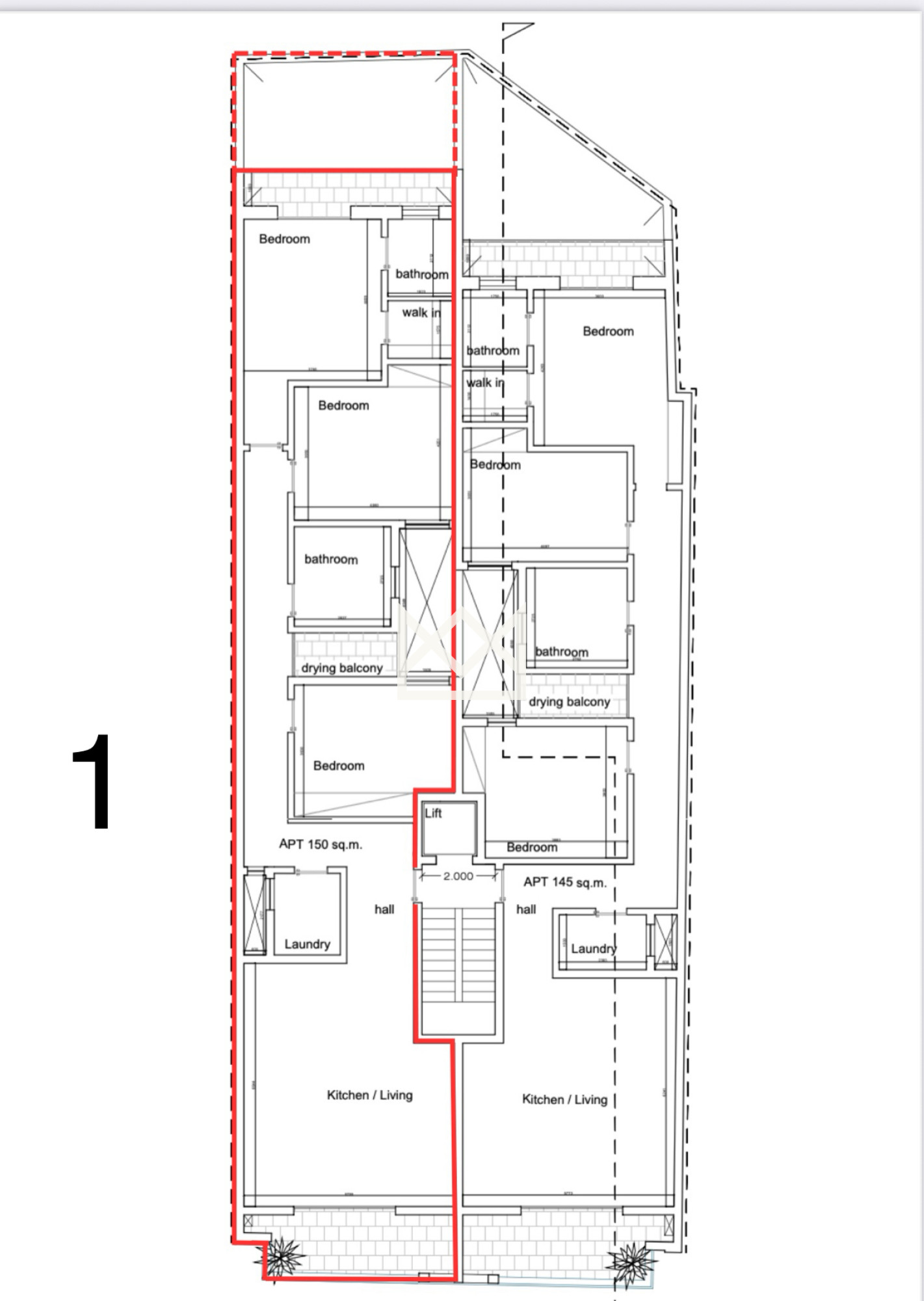
A well-planned off-plan apartment for sale in Nadur, featuring an open-plan kitchen, dining, and living area, three bedrooms, two bathrooms, a separate washroom, and balconies at both the front and back. An optional garage is available at an additional fixed cost starting from €40,000.
Apt no 1-3 bed/2 bath- €220,000
Apt no 2-3 bed/2 bath- €220,000
Apt no 3-3 bed/2 bath- €230,000
Apt no 4-3 bed/2 bath- €230,000
Apt no 5-3 bed/2 bath- €240,000
Apt no 6-3 bed/2 bath- €240,000
Apt no 1-3 bed/2 bath- €220,000
Apt no 2-3 bed/2 bath- €220,000
Apt no 3-3 bed/2 bath- €230,000
Apt no 4-3 bed/2 bath- €230,000
Apt no 5-3 bed/2 bath- €240,000
Apt no 6-3 bed/2 bath- €240,000
Apartment is on floor 1, in a building of 10 units.