Nadur, 3 Bedroom Penthouse with Corner Large Terrace & Views
REF: HAUS-3399
€420,000
COMPLETED ON
6/30/2027




Details
Residential -
Sale
Location:
Nadur
Property Type:
Penthouse
Property Status:
Shell
Description
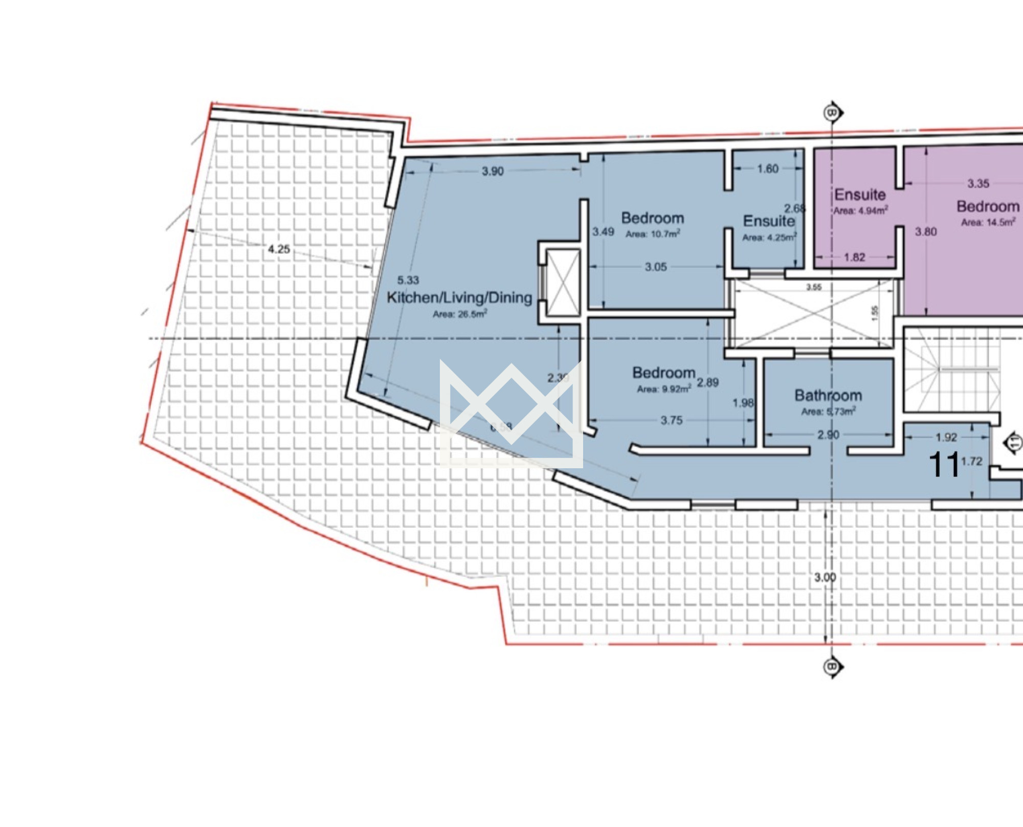
Discover two-bedroom penthouse in Nadur, Gozo, designed with a practical square layout that maximises space and functionality.It includes two bedrooms one with ensuite and both with walk-in, main bathroom, and a well-proportioned open-plan kitchen, living, and dining area. A large private terrace extends the living space outdoors, offering open country views. Ideal for everyday use as well as entertaining.
Available Penthouses:
- Penthouse 10 – €340,000 (2 Bed)
- Penthouse 11 – €420,000 (3 Bed)
- €10,000 for Common Parts Finishes
- Basement Garages Available at Extra Cost
- Shell Form Completion: June 2027
Penthouse is in a building of 11 units.